Skab et udendørsrum med plads til fitness, leg og vasketøj
Daylife-serien er designet som en hyldest til dagligdagen med alt, hvad den indebærer.
Med Daylife er det nemlig nemt at skabe et socialt og skønt rum, der bringer familien tættere sammen undervejs i hverdagens mange gøremål. I det levende og dynamiske rum, som opstår med Daylife, forenes vasketøj, leg, træning og hygge. Med andre ord: Alt det, der for de fleste af os er en del af livet.
Daylife leveres i overskuelige samlesæt, så det er nemt og hurtigt for dig at bygge dit nye, skræddersyede uderum.
Fordele ved Plus Daylife model 3
- Kombinerer tørrestativ, stålespalier, fitnessmodul og gyngestativ i ét
- Malet i en flot, sort farve, der passer naturligt ind i omgivelserne
- Leveres inkl. beslag, skruer og stolper til nedgravning
Yderligere information
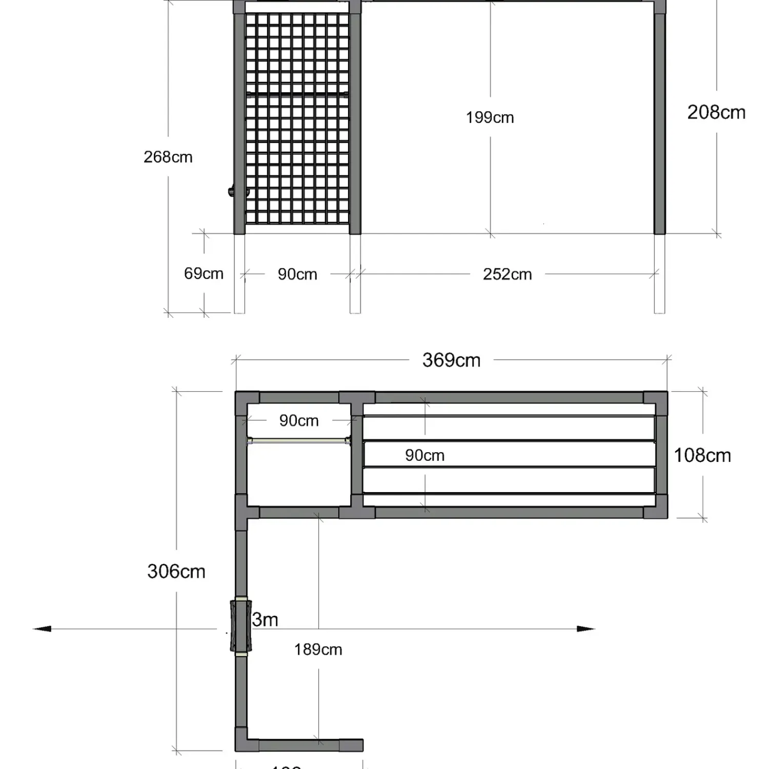
Stålespalier:
90×180 cm – Ø5 mm (3 stk.)
Maskestørrelse: 10×10 cm m/kant.
Varmgalvaniseret og pulverlakeret sort stål.
Inkl. bøjlebeslag.
Tørrestativ:
Indvendigt mål = 252 cm.
Tørresnor: Sort – UV beskyttet polyester.
Ø4 mm × 20 meter.
Inkl. wirestrammer.
Fitness:
Indvendigt mål = 90 cm.
Galvaniseret stålrør 3/4″ (4 stk.).
Rør og fittings er uden gevind.
Fastspændes med umbraco skrue (Umbraconøgle medfølger).
Max. belastning pr. stålrør 150 kg.
Gynge:
Plast Gyngesæde sort.
Inkl. karabinophæng.
Belastning pr. sæde = 50 kg.
Beslag:
Cubic Hjørnebeslag Enkelt 20×20×9 cm (1 stk.).
Cubic Hjørnebeslag Dobbelt 20×20×20 cm (4 stk.).
Cubic Forlængerbeslag Dobbelt 30,5×20×20 cm (3 stk.).
Galvaniseret og pulverlakeret sort.
Inkl. Skruer.
Stolper:
Omlimede træstolper 9×9 cm til nedgravning.
Omlimede Cubic drager 9×9 cm.
Trykimprægneret og grundmalet sort.
Nærmeste RAL 9005 – vandbaseret.
Trykimprægneret NTR mærket klasse A – betyder, at de er effektivt beskyttet mod råd og tåler nedgravning. Stolperne er sammenlimet (omlimet) af to stykker træ for at mindske revnedannelser og vridning samt sikre styrke og formstabilitet.
Leveres som “Saml selv” – enkelte trædele skal tilpasses.

















Reviews
There are no reviews yet.